Casa2 dormitórios
Bairro São Bento - Lajeado/RS
Informações
| Cód/Ref. | V1586 |
|---|---|
| Tipo | Casa |
| Cidade | Lajeado |
| Bairro | São Bento |
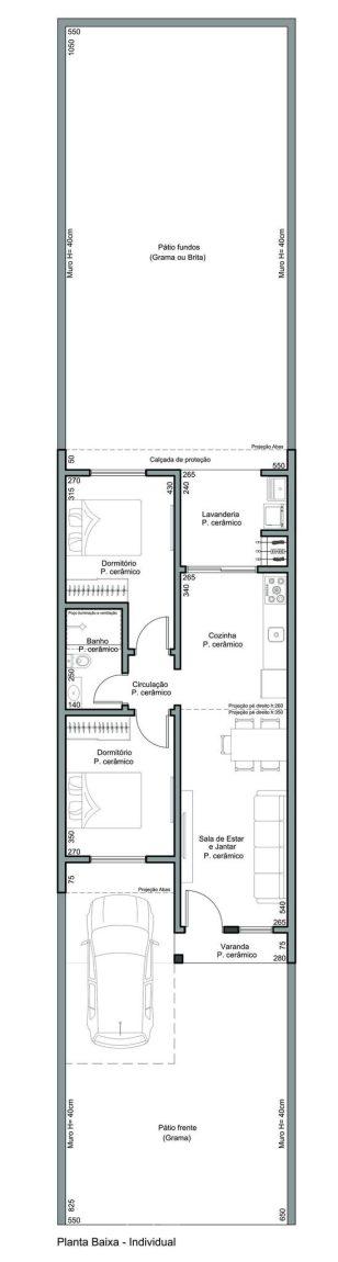
| Área total | 64.27m² |
| Vagas | 1 |
| Dormitórios | 2 |
| Banheiros | 1 |
| Empreendimento | Residencial Felicitá |
R$ 225.000,00
Informações extras
RESIDENCIAL FELICITÁ
O projeto é composto de 8 (oito) casas geminadas e será
construído/dividido em duas etapas:
Etapa 01: Edificação das casas 01,02,03 e 04 (com entrega para junho de 2023)
Etapa 02: Edificação das casas 05,06,07 e 08, (sem previsão de entrega)
Obs: Numeração das casas da esquerda para direita de quem olha de frente
● Casas Nº 01,04,05 e 08 : Área de 64,27 m², composta de 02 dormitórios, Banho social, lavanderia, churrasqueira, sala e cozinha integrada, pátio na frente e nos
fundos.
Acabamentos:
● Aberturas externas em Alumínio da cor preto;
● Aberturas internas em madeira revestida com pvc branco;
● Pisos cerâmicos classe A;
● Massa Corrida nas Paredes internas;
● Rodaforos em Gesso;
● Grama na frente e brita nos fundos;
● Pé direito da sala com 3,5 m;
● Obs. As Imagens são meramente ilustrativas.
